
文/粤进深 严明会
深圳豪宅,陆续传来入市消息。
就在近日,备受关注的深圳三大豪宅之一。
后海招商玺,临时展厅已开放,预计12月入市。
项目将首推1栋24层的小高层,两个户型。
目前,户型图已经披露。
这个项目,建设用地面积14969.93㎡;
总建筑面积150843.93㎡,计容积率建筑面积111267.45㎡;
容积率7.43。
规划住宅户数548户,地下停车位700个。
小区住宅建筑面积88251㎡。
主要有四栋住宅楼和一栋幼儿园。
四栋住宅:
1栋一单元24层,1栋二单元41层;
1栋三单元42层,1栋四单元46层。
整个小区的住宅楼呈“7”字形排布。
项目主打改善产品,建面约188-247㎡。
同时因位于后海,且入市时间接近。
也被与深圳湾澐玺、中信信悦湾一起。
看作是今年备受期待的豪宅。
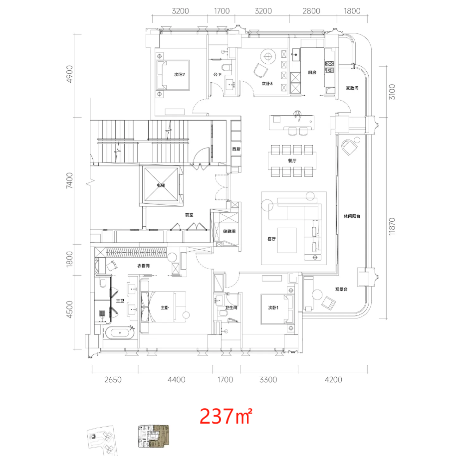
后海招商玺,目前已披露的1栋两个户型。
为197、237㎡户型,单梯入户;
均为4房设计,2个套房,3个卫生间。
具体来看,197㎡在西边,237㎡在东边。


户型图一出来,还是引起了比较大的讨论。
一方面,是后海招商玺作为年底入市豪宅,本身就受到关注。
另一个原因,项目户型确实也有让人感到意外的地方。
布局朝向上,两个户型没有按照以往的朝南设计。
而是将阳台主体朝向了东、西。
并将4个卧室放在了南北两边。
而客餐厅置于中间。
因此整体看,虽然户型做的还算方正。
但跟传统豪宅普遍主张的南北通透,要弱了不少。
怎么说呢,就是没有那种豪宅的惊喜感。
感觉浪费了它的大阳台,有点可惜。
要知道,其237㎡户型的阳台达到11.87米;
197㎡户型的阳台也足足有8米。
另外,户型还有两个问题,受讨论较多。
一个,两个户型,入户门进来并没有过渡玄关。
电梯出来,打开入户门就是客厅。
有点过于直接。
还好两个户型是一梯一户。
不然隐私就是一个问题。
另一个,两个户型的厨房,其实都不算大。
不过,这两个户型仅限在1栋。
其他的楼栋,在朝向、排布上都跟1栋有所不同。
所以其余的户型,还要等后续披露才知道。
其实,关于招商蛇口的这个项目。
关注度一直挺高。
不仅是因为其位置,也因为项目较为曲折的身世。
其原为恒大旗下旧改项目。
早在2016年,恒大签约湾厦村旧改。
整个城更项目占地面积24.95万平方米。
计划要建131万平方米的“前海封面综合体”。
而饼干厂作为一期项目,规划3栋59层超高层住宅写字楼学校,容积率8.9。
只不过,项目因过高的容积率、保障房比例,以及周边居民的反对陷入僵局。
而后恒大出险,项目更彻底搁浅。
2022年,招商蛇口联手平安资管成立合资公司,正式接手饼干厂城市更新项目。
随后规划也有所调整,其中,容积率由8.9调整至6.5。
与此同时,去掉了人才住房和保障性住房。项目得以推进。
目前,后海玺家园开发主体为深圳招商蛇口华湾地产开发有限公司。
该公司成立于2022年12月。董事长为陈永杰,总经理为黄淼兴。
去年12月,招商蛇口举行了饼干厂城市更新单元美好焕新启动仪式。
当时,招商蛇口相关负责人介绍了项目的规划理念与美好愿景:
将充分尊重历史脉络,保留并传承原联合饼干厂的文化记忆;
同时融入现代设计理念,打造具有时代特色的公共空间;
从而打造为招商蛇口旗下绿色人居发展道路上的又一标杆。
但毕竟因为是旧改项目。
后海招商玺有一栋据说是回迁房。
那就是1栋四单元,一层七户。
这栋回迁房是没有跟另外三栋商品房分隔开的。
也就是说,以后的小区园林这些空间都是公用。
不过,整个小区其实不大,园林这些空间也相对有限了。
除此之外,项目剩余的两栋商品住宅:
1栋二、三单元则均为是一层三户设计。
可以预见,后海招商玺入市,将面临一定竞争压力。
片区的两个豪宅中信信悦湾、深圳湾澐玺,来势汹汹。
这两个项目,要更靠近海景。
户型面积更大,定位上也更豪。
当然,价格也更贵。
目前,深圳湾澐玺,已经开放展厅,不久样板间也将开放。
据悉同样将于12月推向市场。
海量资讯、精准解读,尽在新浪财经APP
胜亿配资提示:文章来自网络,不代表本站观点。